Post també disponible en:
La Vicepresidència Primera i Conselleria de Serveis Socials, Igualtat i Habitatge de la Generalitat Valenciana ha concedit a l’Ajuntament de Benaguasil una subvenció de 683.932,00 euros destinada a la rehabilitació de les Antigues Escoles Sagrada Família, edifici que serà adaptat per a acollir les dependències municipals de l’àrea de Benestar Social.
Aquesta ajuda, que correspon al 100% del finançament de les obres de rehabilitació i construcció, permetrà transformar aquest espai emblemàtic en un nou centre destinat a serveis socials, contribuint així al benestar de la ciutadania i a la millora de l’atenció social en el municipi.
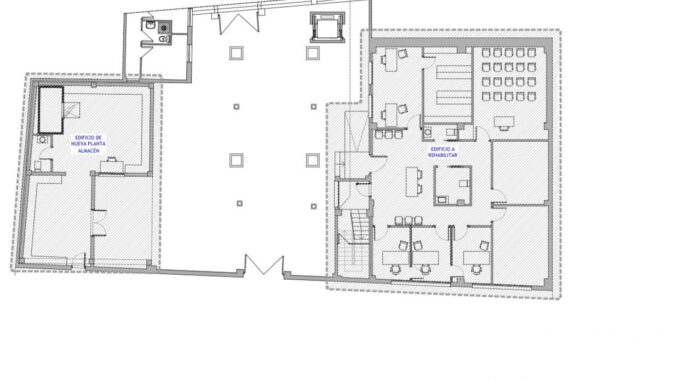
El col·legi de la Sagrada Família, situat al carrer Fra Luis Amigó, és un edifici de dues plantes i una superfície de 800 metres quadrats, situat en sòl urbà dins del centre històric del municipi. L’actuació inclourà la rehabilitació integral de l’immoble i l’adequació de la parcel·la annexa, amb l’objectiu de donar-li un ús públic i social.


Des de l’Ajuntament s’ha destacat que aquesta inversió respon a l’estratègia municipal de recuperar edificis històrics per a dotar-los de nous usos que afavorisquen la cohesió social. L’immoble es destinarà per a les dependències dels Serveis de Socials municipals i comptarà amb: despatxos, zones d’espera, sales de reunió, espais d’atenció, sala d’actes, espai de recepció i d’administració, sala d’arxiu, aules, sala multiusos, sala intervencions familiars i lavabos.
L’Ajuntament de Benaguasil ha expressat la seua satisfacció per la concessió d’aquesta subvenció, destacant que “és una excel·lent notícia per al municipi, ja que permetrà posar en valor un edifici emblemàtic i convertir-lo en un espai al servei de les persones. Aquest projecte reforça el nostre compromís amb les polítiques socials i la millora de la qualitat de vida dels nostres veïns i veïnes”.
Amb aquesta actuació, Benaguasil continua avançant en la seua aposta per la modernització dels serveis públics i la recuperació del patrimoni local.

Be the first to comment